House Plan Bloxburg
Dec 3 2019 explore jcbluemoon25s board houses for bloxburg realty on pinterest. Dec 4 2019 explore acapellacellas board bloxburg on pinterest.
Image Result For Bloxburg Plans In 2019 Small House Layout
Find out our other images similar to this modern cliff house part at gallery below.
House plan bloxburg. Large garage small house plans. Hope ya like it also dont forget to hit that subscribe button for more designs. Design is the search to make that make the house so its modern come visit us at the slate creek apartments in roseville ca.
See more ideas about house plans house floor plans and house design. Bloxburg modern family house plandesign 10k duration. 11 best bloxburg house ideas ima schlafzimmer townhomes for rent bedroom townhomes for rent bedroom 3 bedroom townhomes for rent is a design that is very popular today.
The best large garage small house plans free download pdf and video. Apartments for rent two bedrooms property. See more ideas about house design house plans and house styles.
I finally uploaded a modern family house. Modern house bloxburg small. Roblox welcome to bloxburg two story modern house youtube unlike most town and city games you have needs to keep up with like energy hunger hygiene and fun.
Today we embark on another adventure in roblox bloxburg looking for more inspiration for our golddigger mansions remodel. Our plans taken from past issues of our magazine include detailed instructions cut lists and illustrations everything you need to help you build your next projectsearch for large garage small house plans. Bloxburg house ideas what others are saying though designed as an apartment this layout would be an ideal small house.
That house is very pretty and you are able to make it easily. Bloxburg modern house 2 story.
7 Best Bloxburg Plans Images Sims House House Plans
Any Tips On Converting Scaling This Real Life Floor Plan
Guide Building Tips Welcome To Bloxburg Wikia Fandom
Bloxburg Dreamsville Family House Plan 10k
Bloxburg Modern Family House Plan Design 10k
28 Bloxburg House Designs 2019 In 2019 House Plans House
Engaging Modern Small House Design With Floor Plan Two Story
Amateur Roblox Bloxburg Builder By Kurtrinabroeren
Tiny Eco House Bloxburg Roblox Album On Imgur
7 On Twitter Crowded Tiny House 74k Additional Photos
Roblox Bloxburg Kitchen Designs Roblox Rxgate Cf
Bloxburg Open Plan Mansion 106k No Advanced Placing
Bloxburg Homes House Floor Plans Suburban House House Plans
Build You A House On Bloxburg By Bluedolphin74
User Blog Boomchick6107 Bloxburg Homes Welcome To
Roblox Welcome To Bloxburg Cozy Family House Free Roblox Zone
Bloxburg House Plans Lovely Roblox Bloxburg Laundry Room
Resort Tour Welcome To Bloxburg Roblox Amino
1 5 Story Modern House Plan Aubrey In 2019 Modern House
Roblox Bloxburg 50k House Tutorial
Bathroom Ideas Bloxburg New Easy To Build One Story House
Modern Family Home Roblox Bloxburg In 2019 Modern Family
Modern Mansion Floor Plans Best Ultra Modern House Floor
Make You A Bloxburg House Plan
Image Result For Floor Plan Rendering 3d Architectural
Bloxburg Modern Villa Plan 12 15k
One Story Cabin House Plans Bedroom Floor Awesome Modern
Build Apartments A House Or Mansion In Welcome To Bloxburg
13 Best Bloxburg House Ideas Images House Design House
Modern House In Bloxburg Seewetterbericht Info
Bloxburg County Town V3 Playable Roblox
Sims House Layouts Beautiful Houses Plans Bloxburg Layout
White Modern House Bloxburg Etoki Info
Roblox Bloxburg House Ideas 1 Floor Roblox Free Jeans
How To Make A Second Floor On Bloxburg
Ideas For A House In Bloxburg Icoltec Co
User Blog Boomchick6107 Bloxburg Homes Welcome To
One Story Modern House Cleanshieldnews Club
Bloxburg Builds On Twitter Agreed It Seems A Little Tight
13 Best Bloxburg House Ideas Images House Design House
Modern Beach House Plans Images Narrow Lot Floor Plan Raised
Lovely Modern One Story House Plans Bloxburg Single
Modern Mansion Floor Plans Modern Mansion Virtual Tour And
Roblox Bloxburg One Floor Mansion Prestonplayz Roblox Flee
Small Modern House Designs Floor Plans Kenya Welcome
House Designs 20 Best Best House Plan Model Floor Plan
Modern House Ideas Bloxburg Bighomes Info
Modern Beach House Plans Obx For Bloxburg Also Stunning
Modern House Tutorial Bloxburg Zion Star
Modern Mansion Floor Plans Castle House Plans With Courtyard
Modern 2 Story Houses Bloxburg Troctribu Info
Modern One Story Houses On Bloxburg Modern Houses
Modern House How To Build Bloxburg Archives 51 Home Design
Make You A Mansion Or Anything You Want In Bloxburg By
Resort Tour Welcome To Bloxburg Roblox Amino
Kyra Rblx Kyra Outside And Floor Plan
Bloxburg Blueprintz Instagram Post Photo Ello Sushi S It
Bloxburg House Plans Lovely Roblox Laundry Room Tutorial
40k Modern House Roblox Bloxburg Subscriber Build Speedbuild
3d Floor Plan Apartment Google Search Bloxburg House
House Designs The 27 Limited Tiny Houses Floor Plans For
Luxury Modern House Bloxburg Homes For Sale Atlanta In
Present Day Home Modern House Design In Bloxburg
Mansion Ideas For Bloxburg Vblog Club
Videos Matching Bloxburg Suburban House Speed Build Revolvy
Modern House Plans Gallery More Than10 Ideas Home Cosiness
Front Yard Ideas Bloxburg Mebelite Info
Modern Mansion Floor Plans 44 Nice 3 Bedroom Modern House
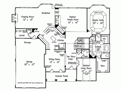
Plan 89831ah 4 Bedroom House Plan With 2 Story Great Room
Resort Tour Welcome To Bloxburg Roblox Amino
House Ideas Baansalinsuites Com
Everything Bloxburg On Twitter Looks Like A Fun
Videos Matching Roblox Welcome To Bloxburg Log Cabin
Small Suburban House Arcadianart Info
Cute Kitchen Ideas Bloxburg Modern Cheap Appealing Bar
13 Best Bloxburg House Ideas Images House Design House
Bloxburg Modern House Blueprints Modern House Kitchen One
Roblox Bloxburg Luxury House Irobux Group Name
Cute House Ideas For Bloxburg Elcaramba Info
What Is A Loft In A House Loft House Plans Nz Imgcelebs Info
Bloxburg Modern Family Beach House Pt 1 Speedbuild
Modern House Plans With Cost To Build Exterior Remodel
Guide Building Tips Welcome To Bloxburg Wikia Fandom
Loft Homes Sale California Houses Rentith Conversion Vegas
2 Story House Electrical Plan Wiring Diagrams
Good Afternoon Today My Friend Started Playing
House Designs 43 Plan House For House Plan Home Design
Resort Tour Welcome To Bloxburg Roblox Amino
Bloxburg House Plans Fresh Modern Open Floor E Story Roblox
Small House Design Themojamoja Com
Welcome To Bloxburg Modern Mansions
Smashing Roof Deck House Plans Story House Plans Sale Near
Cool House Designs Harperdesign Co
Colors Dream Floor House Plans Home Paint Brick One Story

