House Plan Set
If your plan features a poured concrete slab rather than a basement or crawlspace the foundation page shows footings and details for the slab and includes plumbing locations. The floor plan is all about easy indoor outdoor living.
What Is Included With A Bid Set Advanced House Plans
Upgrade your bid set to a licensed plan package to build your new home.
House plan set. This bid set comes stamped not for construction. Inside the surprise is the way the house connects to the backyard through a series of increasingly open spaces from the family room to the nook to the lanai to the bbq patio. The roof plan typically illustrates ridges valleys and hips.
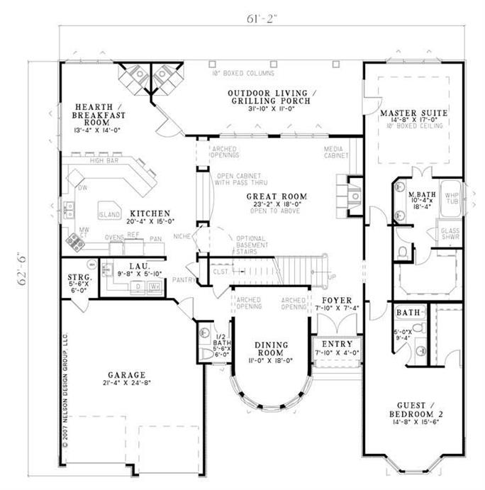
Foundation plan this plan gives the foundation layout including support walls excavated and unexcavated areas if any foundation notes and details. Exterior stonework and a deep signature front porch with tapered square columns set upon heavy piers. The floor framing plans provide structural information such as the joist location spacing and direction as well as the floor heights and stair openings.
Cover sheet an artists rendering of the exterior of the house shows you approximately how the house will look when built and landscaped. Homes with a basement or crawl space will have a floor framing plan for the first floor. A typical wall section for the home is also usually included on this page if not it is elsewhere in your plan set as space allows.
This plan describes the elements that make up the roof. Full credit will be given when upgrading to the exact plan that was purchased. It also may indicate the roofing material and slopes of roof surfaces as well as chimneys and decorative elements.
View more craftsman style house plans. Within minutes after completing your purchase and a license agreement your pdf bid set will be in your inbox. Like modern farmhouse plans craftsman house designs sport terrific curb appeal typically by way of natural materials eg.
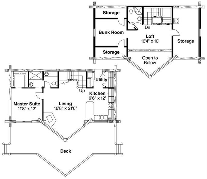
Multi story homes will have floor framing plans for upper floors as well.
Houseplans Package House Blueprints Home Floor Plan Designs
What S In A Good Set Of House Plans Randall Southwest Plans
What Is In A Set Of House Plans Sater Design Collection
What Is In A Set Of House Plans Sater Design Collection
House Plans By John Tee Preview Bid Set
French Country Style House Plan 66245 With 4 Bed 4 Bath 3 Car Garage
What Is In A Set Of House Plans Sater Design Collection
What Is In A Set Of House Plans Archival Designs
Garibaldi Cottage Vr Tour Study Set Starter Package
What S In A Good Set Of House Plans Randall Southwest Plans
What Is In A Set Of House Plans Sater Design Collection
Colonial Ranch House Plan 3 Bdrm 2097 Sq Ft 109 1184
One Story Style House Plan 98806 With 3 Bed 2 Bath 2 Car Garage
Sample Plan Set Gmf Architects House Plans Gmf
Plan 73372hs Exclusive House Plan With 4 Car Garage And Sport Court
Houseplans Package House Blueprints Home Floor Plan Designs
What S In A Good Set Of House Plans Randall Southwest Plans
Country Farmhouse Home With 3 Bdrms 1506 Sq Ft Floor Plan 108 1002
Example Plan Set Custom Home Design Joe Carrick Design
The Milton 2 Bedroom Passive Solar Home Full Set Drawings
Set Of Different Black And White House Floor Plans
What S In A Good Set Of House Plans Randall Southwest Plans
9 Reasons To Buy A Professional Set Of House Plans
Full Set Of Two Story 3 Bedroom House Plans 1 960 Sq Ft
Retro Style House Plan 1074 With 3 Bed 2 Bath 1 Car Garage
Architectural House Plans Custom Home Plan Structural
Cad File Dwg Format Set Of Drawings The Hill
Architectural Set Of Furniture Interiors Elements For House
What Is Included In House Plans Complete Blueprints
Furniture Icons Line Style Set With House Plan
Building Plans And Blueprints 42130 1 597 Sq Ft Custom Home
Southern Style House Plan 40019 With 3 Bed 3 Bath 2 Car Garage
Architectural Plan Of A House Layout Of The Apartment Top View
Architectural Plan Of A House Layout Of The Apartment Top View
House From Practical Magic Floor Plan In 2019 Magic House
What Is In A Set Of House Plans Archival Designs
Contemporary Home With 3 Bdrms 1430 Sq Ft House Plan 108 1078
Traditional Style House Plan 99696 With 4 Bed 3 Bath 2 Car Garage
House Plan Love The Set Up Side Garage Wrap Around Porch
Set Architecture Background House Plan
Log Cabin Small Home With 2 Bedrms 1216 Sq Ft Plan 108 1538
Architectural Set Of Furniture On Apartment Plan With Sizes
House Plan 72597 With 4 Bed 4 Bath 2 Car Garage
Green Orchard Ranch Home Plan 072d 1108 House Plans And More
What Is In A Set Of House Plans Archival Designs
Amazon Com 50 Simple House Plans House Plans Designs
Plan 44045td Center Hall Colonial House Plan
146 Du 146 3 3 Bed Two Storey Design 3 Bedroom Two Storey Design 3 Bedroom Two Storey Concept House Plans For Sale
Plan Architectures Complete House Pretty Set Design Balcony
Country Home With 6 Bedrooms 3759 Sq Ft House Plan 108 1484
Architecture Plan With Furniture House Floor Plan Kitchen
Floor Plan For Homes With Courtyard Plans Choose An Option
Craftsman Style House Plan 3 Beds 3 5 Baths 2495 Sq Ft
What S In A Good Set Of House Plans Randall Southwest Plans
Architectures House Set Plan Complete Excellent Astonishing
Set Of Different Black And White House Floor Plans With Interior Details On White
Modern Passive Solar Ranch House Plans Home Design Ls B 510 21439
Berkshire Park House Plan 17 29
Home Plan The Bellaire By Donald A Gardner Architects
Southern Style House Plan 1 Beds 1 Baths 848 Sq Ft Plan
Architectural Plan Of A House In Top View Floor Plan With Furniture
Cottage House Plan With 2 Bedrooms And 1 5 Baths Plan 3613
High Quality Custom House Plans
House Plan The Atherton By Donald A Gardner Architects
Modern House Plan With 3 Bedrooms And 1 5 Baths Plan 3810
Step 6 Designing House Plans Roadmap To Building A New Home
New Minim House Plan Set Minim Homes
What Is In A Set Of House Plans Archival Designs
Complete Set Of One House Plan 4 532 Square Feet In Pdf
102kr 2 Bed Carport Granny Flat 102 2 M2 Preliminary
Full Set Of Two Story 5 Bedroom House Plans 5 052 Sq Ft
Softplan 2016 New Features Plan Sets Softplan Home Design
Great 1 Story Plan Like The Kids Room Set Up 5 Bedroom
Details About Frank Lloyd Wright S Prairie Style Robie House Architectural Plans Reduced Set
House Plans By Hope Mcgrady Stock Plans This Page Is
House Home Floor Plan Ordering Information Associated
Prairie Style House Plan 3 Beds 2 Baths 1841 Sq Ft Plan
Mediterranean Home With 2 Bdrms 3926 Sq Ft House Plan 108 1366
House Plan Documents For Signing Handshake Terrain Plan
Architecture Line Icon Set Pencil Ruler Floor Plan Building
What Is In A Set Of House Plans Archival Designs
Home Plans Love This Set Up In 2019 House Floor Plans











